VIO – So vielseitig, so flexibel.
VIO bietet FingerHaus-Qualität zu einem fairen Preis, ohne auf Wohnkomfort zu verzichten. Mit verschiedenen Größen und Grundrissvarianten passt sich VIO ideal an jede Familie an und wird durch durchdachte Fassadengestaltung zu einem einzigartigen Zuhause.

- große Quadratmeterspanne
- Eingang grundsätzlich traufseitig
- flexibel bei Sonderbauteil-Optionen
- flexibel für zusätzliche Räume wie Arbeitszimmer,
- Speisekammer, Abstellraum, Ankleide

Am Geld kann man sparen - an der Qualität nicht!
Das Hauskonzept VIO bietet Ihnen FingerHaus-Qualität zum kompromisslos kalkulierten Preis. Es verzichtet auf kostspielige Extras, ohne dass Sie dabei auf Wohnkomfort verzichten müssen. VIO ist eines der beliebtesten Finger-Hauskonzepte. Das liegt daran, dass es genau das bietet, was viele Menschen suchen.
VIO ist in fünf Größen erhältlich und bietet unterschiedliche Kniestockhöhen von 0,50 m, 1,00 m und 1,30 m. Mit diesen verschiedenen Größen- und Grundrissvarianten sowie optionalen Sonderbauteilen lässt sich VIO optimal an die Lebenssituation jeder Familie anpassen. Mit durchdachten Ideen bei der Fassadengestaltung wird jedes Haus zu etwas ganz Besonderem.
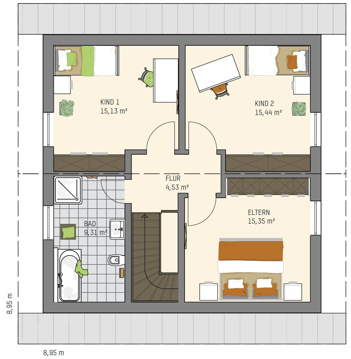
Planungsvorschlag VIO 100
Daten & Fakten von VIO 100
Damit Sie Ihre Favoriten-Häuser markieren können, müssen Sie sich vorab bitte im Serviceportal "Mein Finger-Haus" einloggen. Im Serviceportal werden anschließend Ihre Favoriten-Häuser aufgeführt.
Noch nicht registriert?
Dann registrieren Sie sich kostenlos im Serviceportal "Mein Finger-Haus".
Das Besondere bei VIO
Hier finden Sie eine Auswahl möglicher Sonderbauteile, die bei VIO umsetzbar sind. Fragen Sie Ihren Fachberater gerne nach weiteren Sonderbauteilen.
Sie wollen mehr wissen? Wählen Sie Ihre Kontaktmöglichkeit.

Serviceportal FingerHaus
Profitieren Sie von exklusiven Vorteilen in unserem Serviceportal

Beratung in
Ihrer Nähe.
Ihr Fachberater berät Sie gerne – vor Ort in unseren Musterhäusern und Beratungsbüros oder digital!

Musterhaus besuchen.
FingerHaus live Erleben: Besuchen Sie eines unserer Musterhäuser























































